Raquel Bernal
Rectora Universidad de los Andes
Hernando Barragán
Decano Facultad de Arquitectura y Diseño
Claudia Mejía
Directora Departamento de Arquitectura
Ana María Bustamante
Mateo Cely
Curaduría
Andrea Amin
Coordinadora de Comunicaciones
Santiago Herrera
Coordinador de eventos y educación continua
Laura Murillo
Coordinadora de creación de contenidos
Valentina Osorio
Coordinadora de desarrollo
Adriana Páramo
Coordinadora de publicaciones
Juanita Echeverry
Coordinación de la exposición
Martha Reyes
Corrección de estilo
Verónica Arancibia
Juanita Echeverry
Diseño y diagramación
Isabela Ortiz
Diseño y desarrollo web
Alejandro Barragán
María Camila Gómez
Producción audiovisual
Interfaz
Producción y montaje
TERRITORIOS SIMÉTRICOS
(DESDE/A TRAVÉS DE) LO GRÁFICO
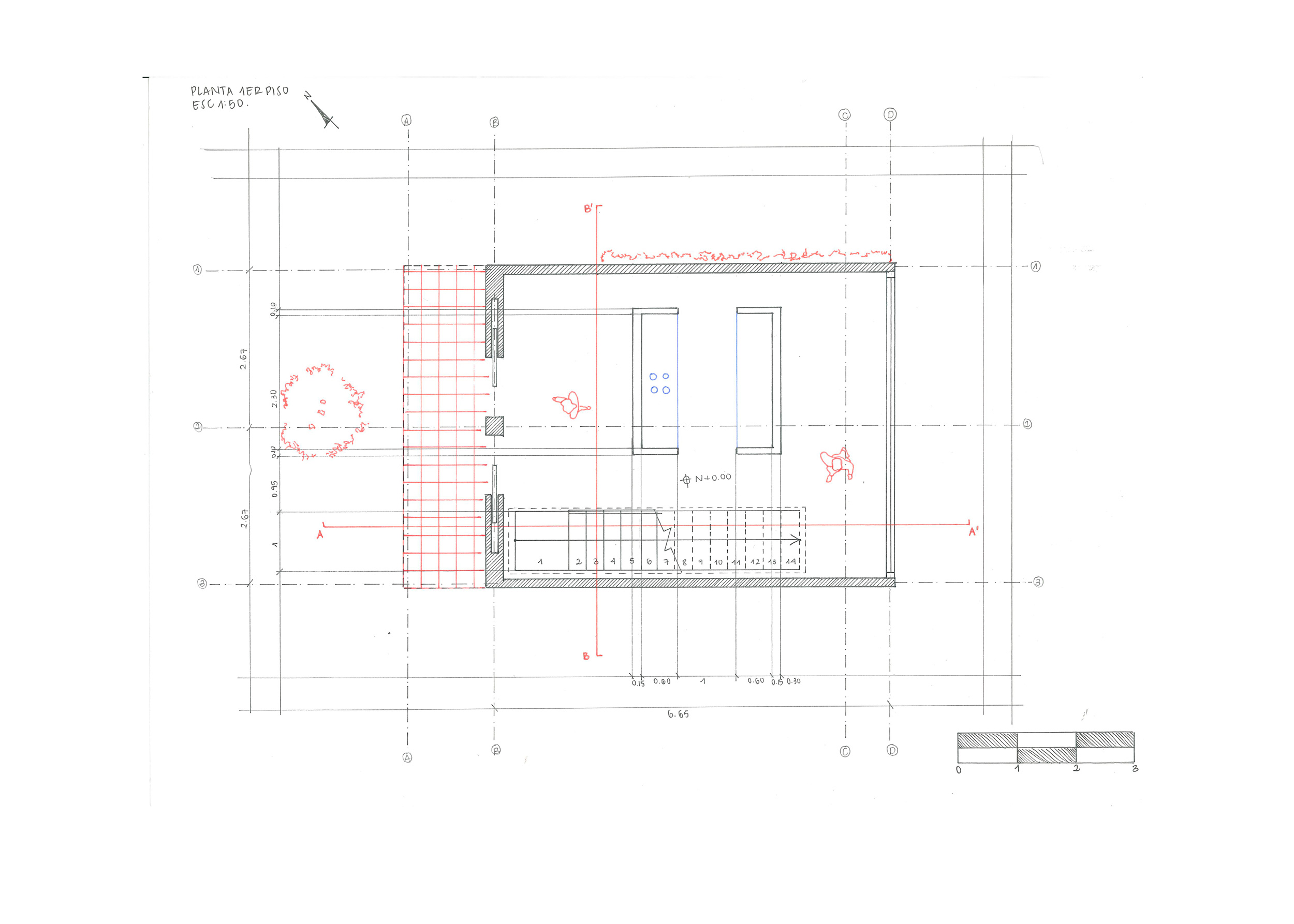
Se propuso un pabellón en donde se buscó jugar y sobreponer volúmenes de diferentes tamaños; lo anterior, con el fin de alterar ligeramente la simetría y generar aleros y balcones. Teniendo en cuenta el cuerpo del espacio, se manejaron alturas de 2,50 m por piso y se incluyeron diferentes elementos arquitectónicos, como una vidriera, un tragaluz, dos puertas empotradas, una escalera de un tramo y dos antepechos. Adicional a esto, se incorporó vegetación alrededor del pabellón y un mueble. Para mostrar el proyecto en su totalidad, se presentaron dos cortes, una planta del primer piso, una planta del segundo piso, una axonometría hecha con acuarelas, un fotomontaje, una planta de cubiertas, un corte de localización y, finalmente, un dibujo esquemático que muestra la idea global de la propuesta. Asimismo, se utilizaron los colores azul y rojo para resaltar los muebles del pabellón, la figura humana y la vegetación que arma el paisaje exterior.
Acerca del proyecto:
Autor: María Juliana La Rota Martínez
Profesor: Catalina Mahé


