Raquel Bernal
Rectora Universidad de los Andes
Hernando Barragán
Decano Facultad de Arquitectura y Diseño
Claudia Mejía
Directora Departamento de Arquitectura
Ana María Bustamante
Mateo Cely
Curaduría
Andrea Amin
Coordinadora de Comunicaciones
Santiago Herrera
Coordinador de eventos y educación continua
Laura Murillo
Coordinadora de creación de contenidos
Valentina Osorio
Coordinadora de desarrollo
Adriana Páramo
Coordinadora de publicaciones
Juanita Echeverry
Coordinación de la exposición
Martha Reyes
Corrección de estilo
Verónica Arancibia
Juanita Echeverry
Diseño y diagramación
Isabela Ortiz
Diseño y desarrollo web
Alejandro Barragán
María Camila Gómez
Producción audiovisual
Interfaz
Producción y montaje
COMPLETAR LA MANZANA, LA CONCEPCIÓN DEL LUGAR DESDE EL DIÁLOGO Y LA HISTORIA
(DESDE/A TRAVÉS DE) LO GRÁFICO
El curso explora las posibilidades arquitectónicas para evaluar el crecimiento que las ciudades intermedias están enfrentando: la presión por el desarrollo urbano y las ventajas u obstáculos que pueden tener para apoyar este crecimiento. El desafío se centrará en la regeneración urbana de las áreas urbanas centrales de Fusagasugá, lugar que ejemplifica muchas de las condiciones urbanas típicas de otras ciudades intermedias de Colombia.
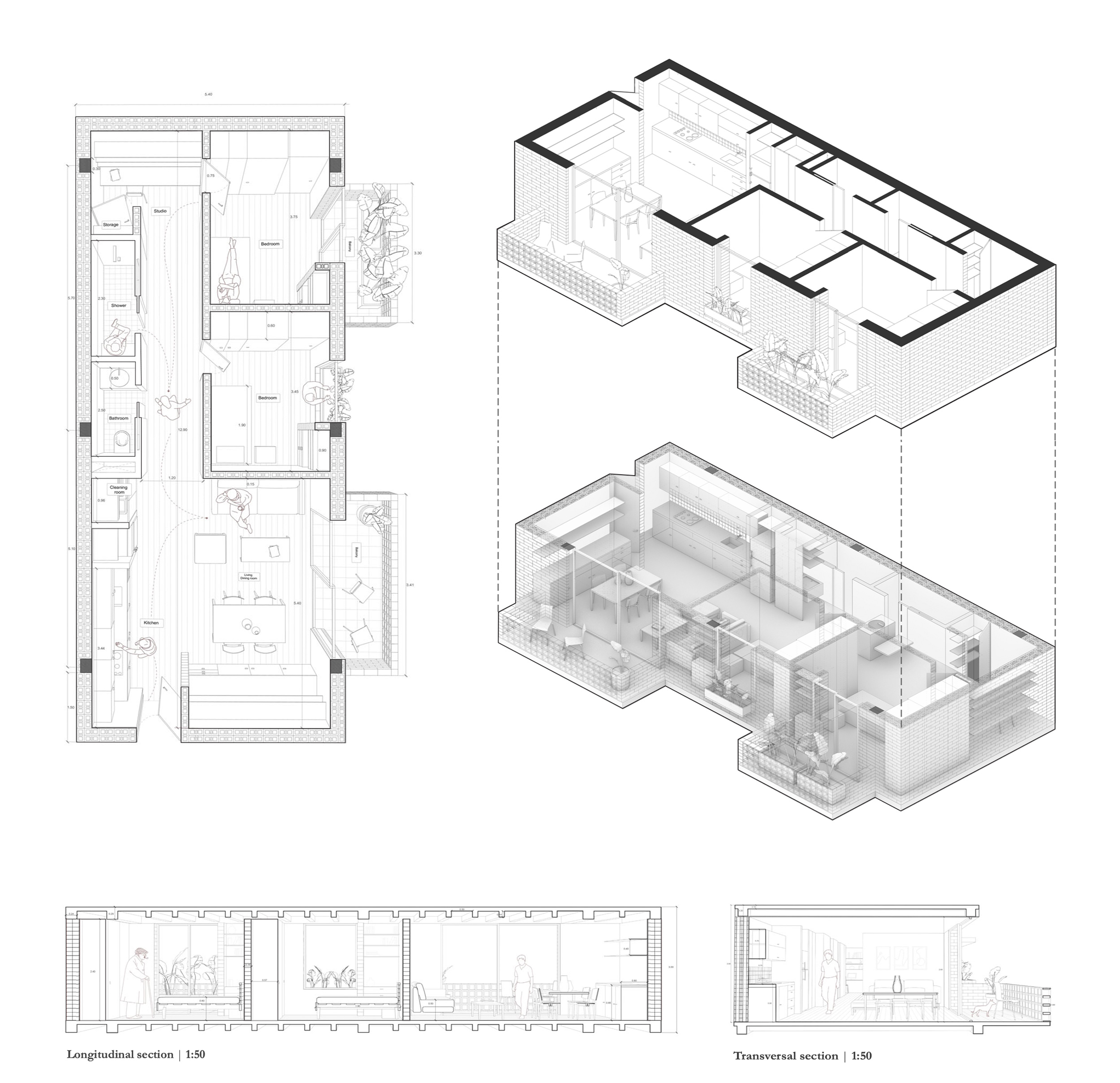
El proyecto parte de la búsqueda de lo intangible a través del diálogo y la observación. Trazar un nuevo cardo y decumano a partir de lo no visto, un tejido a partir de la construcción y deconstrucción de la idea de lugar gracias a los diálogos con las personas. La concepción del lugar se concibe entonces entre lo que fue, lo que es y lo que podría ser. El ejercicio es una recopilación a modo de análisis a través de elementos mensurables cuantitativa y cualitativamente para nosotros, pero también será un intento de materializar lo conversado con la gente del lugar, buscando diferentes métodos dentro de un lenguaje común para repensar el espacio colectivamente.
Acerca del proyecto:
Autores: Nicolás Gutiérrez, Ezequiel Leibovich
Profesores: María Luisa Vela, Juan Bernardo Vera, Marc Jané

